HOUSE IN KASHIWAGI / 柏木の家
















納屋のように広い心
敷地は旗竿形状で、竿地を30mも進むとすっかり道路のせわしなさは薄れて、静かな時間が流れ始める。周囲ではぽつりぽつりと空き家や古い住戸が建て変わり始め(実際、設計の途中で隣家も解体された)、各々の時間が動き出している。この住宅は、それら新旧の時間の両方に関わりうるような、とても単純で、基本的な要素でつくられている。
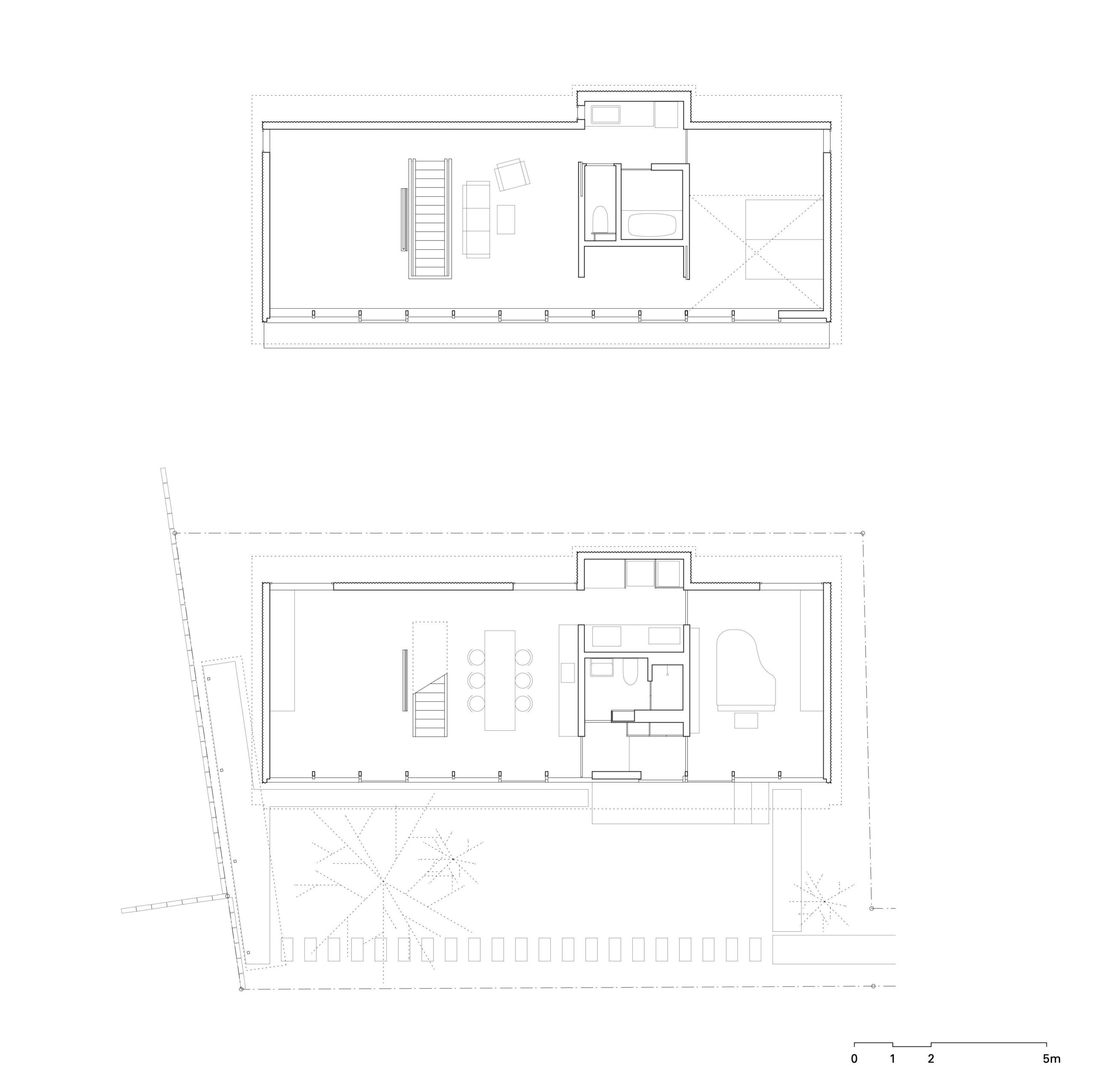
敷地の北半分に置かれた矩形の上に、単純な屋根が掛けられている。矩形平面の中には、まずは水廻りのコアがあり、次に階段がある。おおむねそれだけといっていい。コアと階段は室内をいくつかの領域に分けながら、それらをひとつながりの空間として関係付けている。そしてそのいずれの場所からも、南には水平に伸びるひとつの窓が見える。この窓は、建築の全長と同じだけの長さがあり、120角を半割にした60×120の柱が1213ピッチで均等に並ぶ。やや圧縮された見付60の偏平柱が、やや間延びした1213という単位で反復される光景は、木造軸組の慣習的な建ち現れ方にささやかな弛緩と緊張を与える。柱の座屈止めの壁が、下階では垂れ壁として、上階では腰壁として現れる。1階と2階は同じ平面の繰り返しで、南面窓のあり方の違いがそれぞれの空間の質を特徴付けている。
親切な住宅は、何をするにも過不足がなく、何かをするには窮屈だと思う。住宅は住まい手に対して無関心であってほしい。一方で、何をしても許されるような大らかさで生活を包んでほしい。そうした寄り添わない寛容さ、とでもいうような質をつくれないかと考えた。そのために、住宅をかたちづくる機能や慣習の輪郭をぼかし、それを中立的な立ち現れ方へと変えていく。
求めたのは「納屋のように広い心」だ。“海のようにでも、空のようにでもない。納屋のようにだ。” 佐藤泰志の短編にあるこの言葉から立ち上げるのは、粗野で簡素な、それでいて時を経ても変わらない、純粋な包容力をもった姿である。私たちが目指したのはそんな建築である。
所在地 宮城県
主要用途 専用住宅
主要構造 木造
延床面積 145.88㎡
竣工 2024
photo ryota atarashi